Nabídky k této zakázce můžete přidávat už jen maximálně 48 dní, 11 hodin a 51 minut. Zadavatel má možnost vybrat šikulu kdykoliv před uplynutím této doby.
Místo realizace na mapě
Uherský Brod 1 (68801)
Termín realizace
20.4. 00:00 - 10.5. 00:00
Předpokládaná odměna
120000 Kč
Vyžaduji účetní doklad
Ne
Poznámka
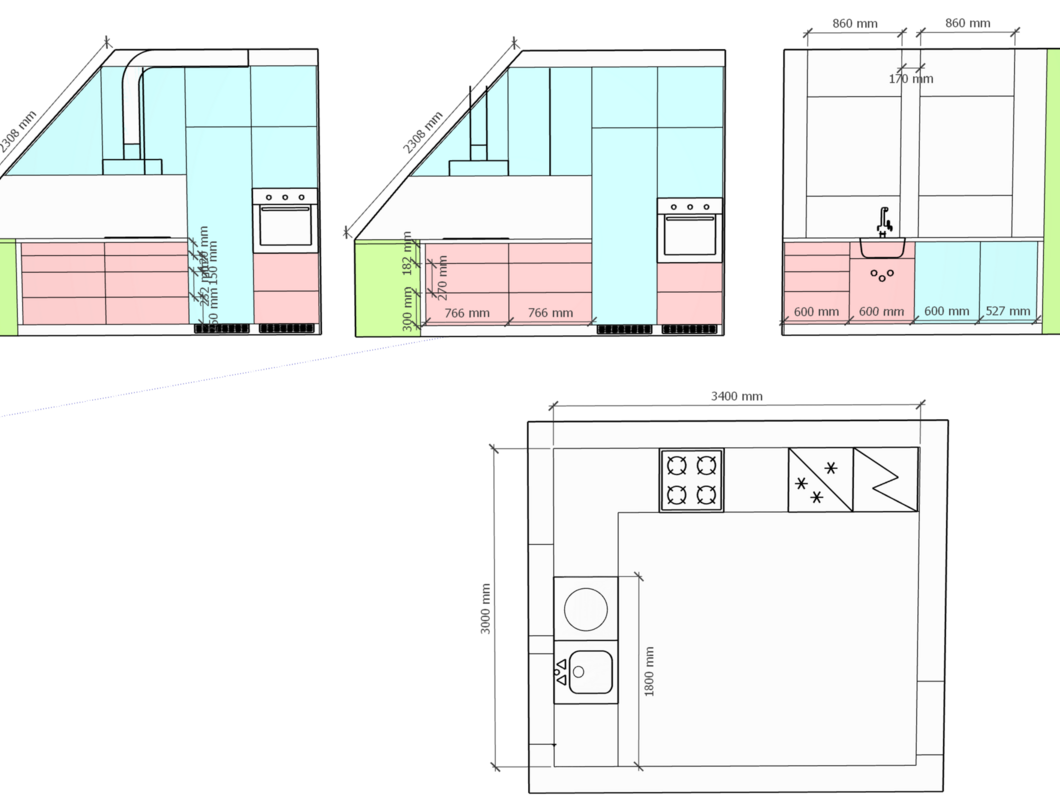
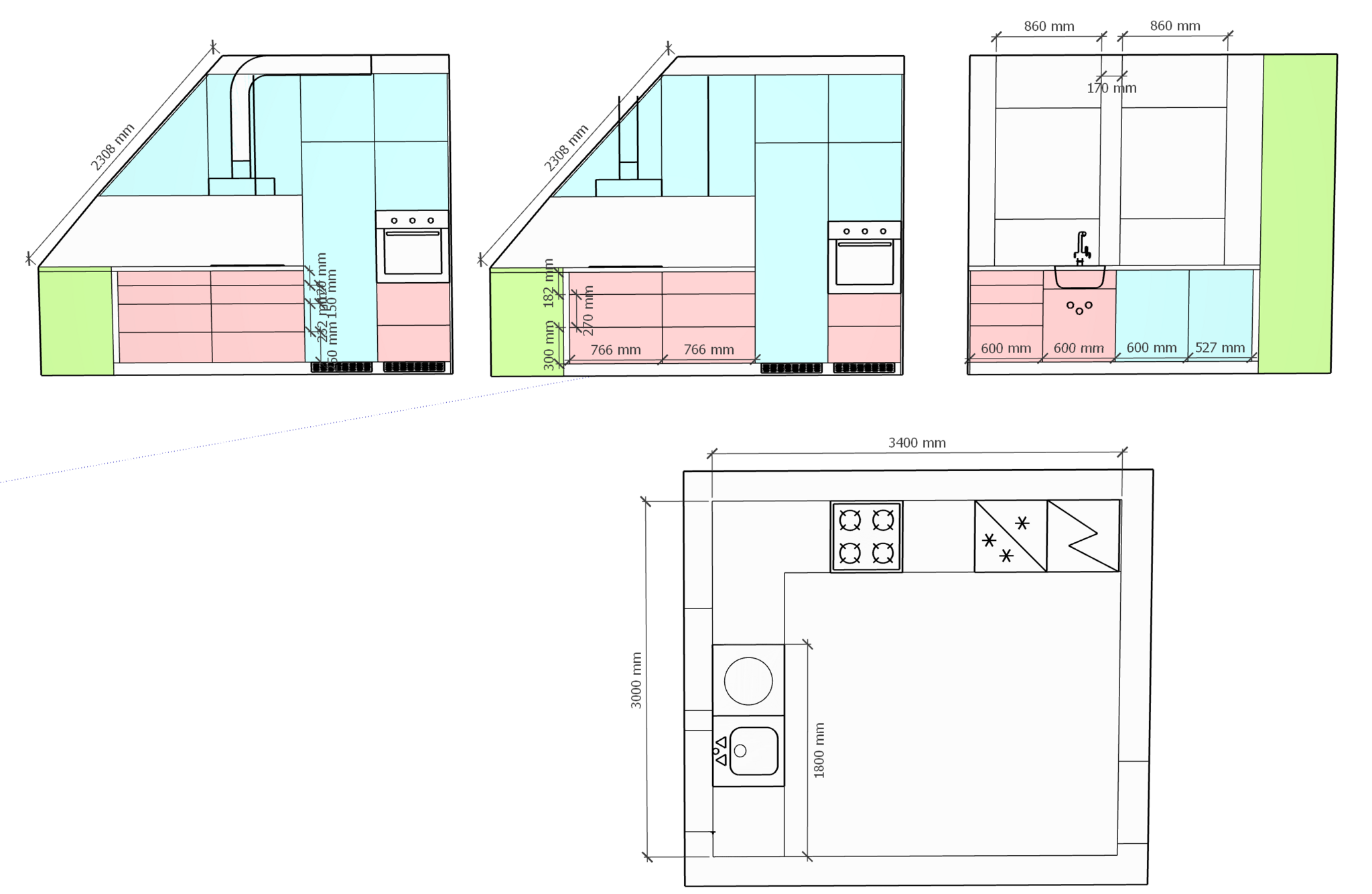
Pro rekonstrukci bytu potřebujeme vyrobit kuchyň do podkroví, 4. patro bez výtahu, termín stěhování konec dubna, kuchyň tedy montovat na přelomu dubna a května. Materiál 18mm lamino, v matu, zádová deska, vest.myčka, lednice, trouba. Tiché pojezdy a dovírání, dvířka i šuplíky s úchytkami.
Nabídku mohou přidávat pouze zhotovitelé. Registrovat se
Tyto stránky využívají cookies
Cookies používáme, abychom zajistili správné fungování a bezpečnost našich stránek, tím pádem co nejlepší zkušenost při návštěvě. Svá nastavení cookies můžete později kdykoliv změnit. Další informace o Cookies
Nastavení
Na této stránce můžete nastavit souhlas pro jednotlivé účely generování a využívání souborů cookies. Další informace o Cookies
Zajišťují, že tyto stránky fungují správně a bezpečně na všech zařízeních.
Marketingové cookies nám umožňují zobrazovat relevantní reklamu i mimo náš web, vyhodnocovat její úspěšnost a zvyšovat tak Vaši spokojnost. Tyto subory cookies nám také pomáhají personalizovat reklamu, kterou vidíte na našich stránkách, a také určovat, jaké reklamy, reklamní technologie a reklamní sítě jsou pro nás nejužitnější. Na základě těchto cookies můžeme vytvářet profily o vašich zájmech a podle nich Vám zobrazovat relevantní reklamy. Marketingové cookies využíváme i pro zbožové porovnávače cen.